
BYTOVÝ DOM V KARLOVEJ VSI

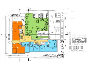
situovanie: pozemok sa nachádza na spojnici ulíc Molecová a Gabčíkova v Karlovej Vsi.
plocha pozemku: 2104
zastavaná plocha: 720 m2
počet podlaží: 13
počet bytov: 86
počet parkovacích miest v garážovom dome: 84
počet parkovacích miest na nádvorí: 9
architektúra objektu: Hmota objektu je zložená z dvoch dosiek (južné a východné krídlo) usporiadaných do tvaru L. Hlavné nárožie je orientované na juhovýchod. Nosný systém objektu je zložený so stenového systému (vnútro objektu) a skeletu (obvodový plášt objektu). Krídla majú odlišné priestorové členenie. Južné krídlo má modul priestrannejší, východné úspornejší. Toto priestorové členenie vychádza z orientácie pozemku, ktorá podmieňuje kvalitnejšie bývanie na južnej strane (viac slnka, lepšie panorámy).
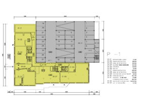
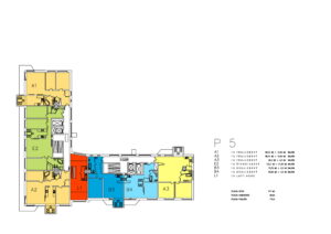
Hlavná hmota bytovky je vyskladaná z jedného typu podlažia, ktoré má tri jednoduché varianty, navrhnuté tak, aby bol zachovaný rovnaký konštrukčný systém, ale aj určitá rozmanitosť typov bytov. Na spodných podlažiach domu (P-02, P-01, P00) je umiestnený parter, polyfunkcia a pivnice bytov, v hlavnej hmote (P01 až P11) sú situované byty a na vrchných podlažiach (P11, P12) sú umiestnené 2 strešné veľkorozmerové byty. Vo východnom krídle je na severnej strane radený vertikálny pás loftových bytov. Každé krídlo má svoje nezávislé vertikálne jadro (schodisko + 2 výťahy). Jadrá sú vzájomne prepojené tak, aby pri požiari bolo možné použiť dve únikové cesty. Byty sú horizontálne prístupné chodbami situovanými na vnútornej strane objektu. Celkový počet bytov je 86. Polyfunkčná časť objektu je prístupná z Molecovej ulice, obytná časť má samostatné vchody aj od ulíc, aj z vnútorného nádvoria. Kotolňa je situovaná na severnej streche východného krídla.
garážový dom: Parking je umiestnený v nezávislom objekte, ktorý je situovaný vo vnútrobloku, prístupný z Gabčíkovej ulici. Strecha garážového domu je na rovnakej úrovni ako Gabčíková ulica. Počet parkovacích miest je 28 na jednom podlaží, celkový počet parkovacích miest je 81 + 9 Konštrukčná výška garážového domu je 2,5 m.
konštrukčný systém: železobetónový monolitický skelet v kombinácii so stenovým systémom.
typy a počet bytov:86
trojizbové – štvorizbové – dvojizbový – lofty – strešný byt




